Croom DA rejected

A proposal to build an integrated development on an old dairy farm opposite the Jamberoo Action Park has been rejected by Council’s planning staff.

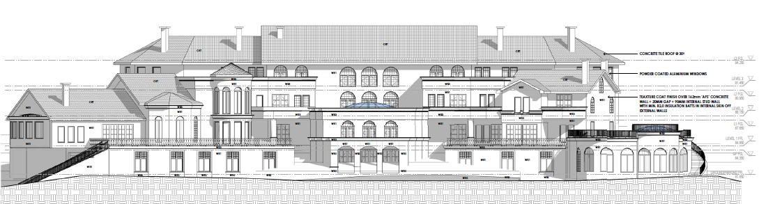
The owner proposed a massive 11 bedroom residence, a secondary dwelling and five separate farm stay houses, as well as an education centre, sheds and roadworks.

The capacity of the proposed on-site effluent disposal system triggered more onerous ‘designated development’ provisions, meaning the DA was deemed to not be complete.

 

 

Leave a comment